HOK Award
Annual competition challenges Philadelphia architecture and interior design students to propose forward-thinking design concepts that enhance the city.
2022 HOK Futures Design Challenge asked students to create design concepts for a proposed winery and incubator space on Venice Island, a former manufacturing and industrial hub located along the Schuylkill River in the Manayunk neighborhood of Philadelphia. Students were challenged to design a concept that celebrates the history of Venice Island and its rebirth as a recreational and residential hub. Designs also needed to account for the occasional flooding of Venice Island during storm events.
Partnered with Ala Alharbi
MOOD BOARD






BRANDED ELEMENTS
Logo
MATERIALS FURNITURE AND LIGHTINGS


Programing




PARTI
BUBBLE DIAGRAM
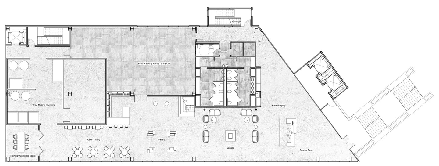
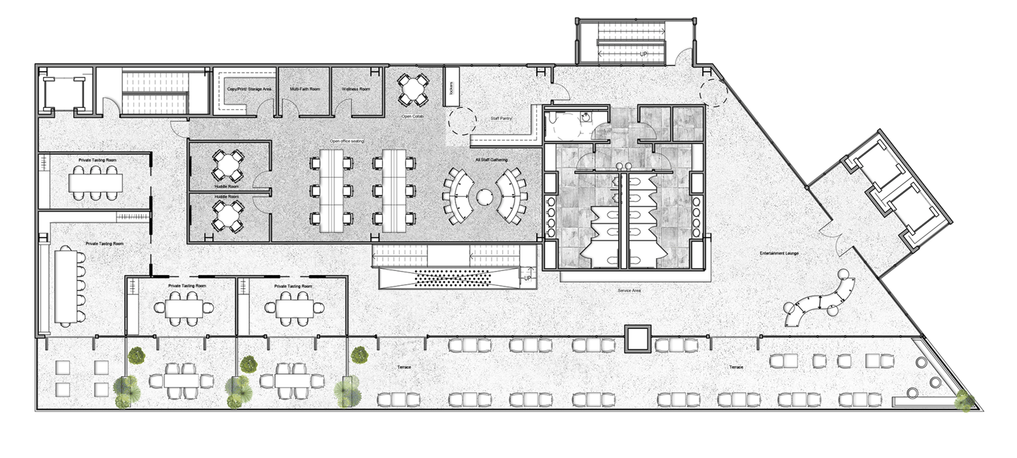
First Floor Plan


Main Entry




Elevation - Retail Area
Lounge


First Floor RCP






Public Tasting and Gallery




Custom display unit


Elevation - Screen Custom Design
2nd Floor Plan


Public Terrace


Private Tasting


Private Tasting Terrace








